Назовите оператору контакт центра при звонке ваш промокод:    

Безопасная аренда

Подробнее

Онлайн просмотры и договор с цифровой подписью

Помещение
Этаж 3
Площадь 70.4 м2
Ставка 710 руб./м2
Характеристики
Безопасность
Охрана Круглосуточная
Коммуникации
Телефон есть
Интернет оптоволокно
В арендную плату входит
  • Профессиональное управление
  • НДС
Оплачивается отдельно
  • Клининг
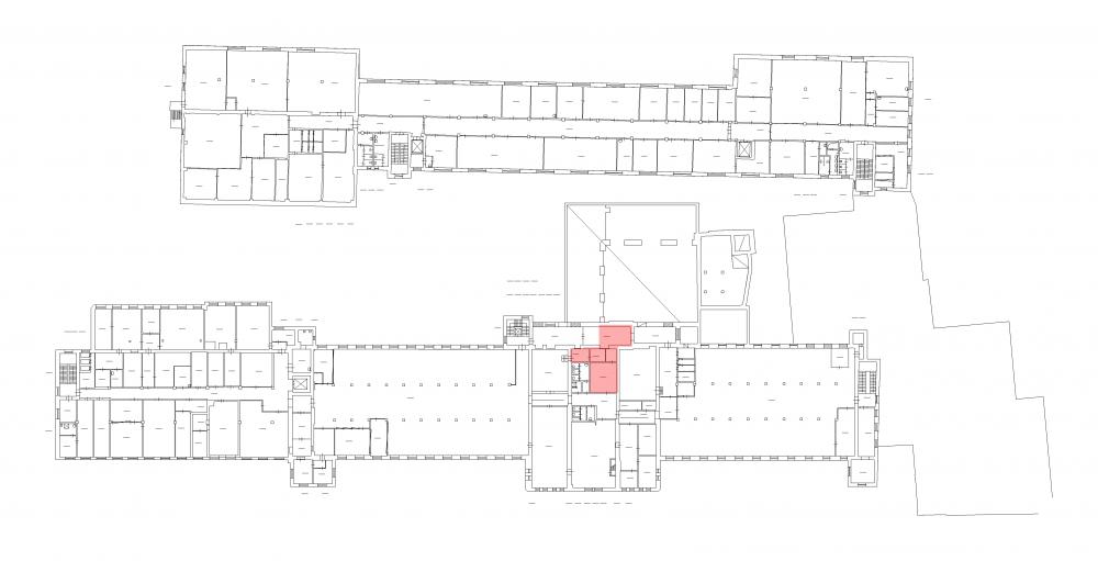
План помещения
Описание
Аренда тёплого складского помещения площадью 70,4 кв. м для ХРАНЕНИЯ ОДЕЖДЫ у станции метро "Нарвская".

Помещение ПЛОЩАДЬЮ 70,4 кв. м расположено на 3-м ЭТАЖЕ здания.
В здании работает грузовой лифт на 2т (2,4х1,9х2,2м) на этаже.
Высота потолка - 3.53 м, стены окрашены, кафель.

ДОПОЛНИТЕЛЬНЫЕ УСЛУГИ: высокоскоростной интернет и цифровая телефония.
Оснащение: отопление, выделенная электрическая мощность, освещение.

Действует система СКУД.
ОХРАНА 24 часа.
Парковка.
+7 (812) 493-52-74
Перезвоните мне
Хотите посмотреть? Покажем вам это помещение и несколько похожих
Запишитесь на просмотр
Вас также может заинтересовать
25 м2
21 225 руб
58.8 м2
34 339.2 руб
246.7 м2
88 565.3 руб
390.7 м2
300 839 руб
768.5 м2
660 141.5 руб
2097.5 м2
2 181 400 руб
4089.6 м2
4 903 430.4 руб
5803.2 м2
6 325 488 руб