Назовите оператору контакт центра при звонке ваш промокод:    

Безопасная аренда

Подробнее

Онлайн просмотры и договор с цифровой подписью

Помещение
Этаж 4
Площадь 2 097.5 м2
Ставка 1 040 руб./м2
Характеристики
Безопасность
Охрана Круглосуточная
Коммуникации
Телефон есть
Интернет оптоволокно
В арендную плату входит
  • Профессиональное управление
  • НДС
Оплачивается отдельно
  • Клининг
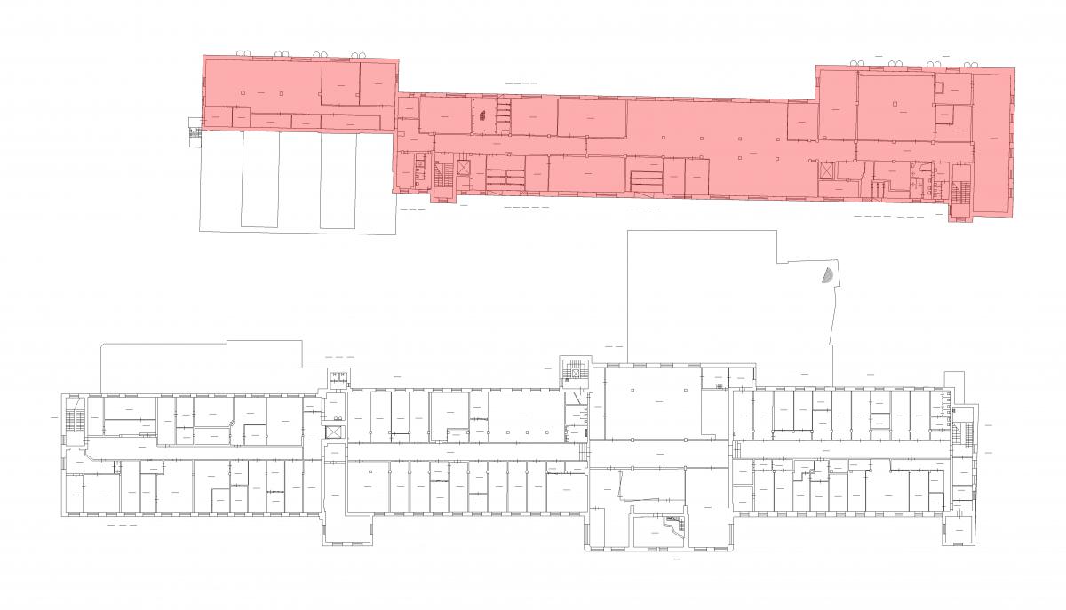
План помещения
Описание
В Кировском районе города на территории технопарка "Промышленная 5" под крупное производство сдаётся помещение площадью 2097,5 кв. м.

В пешей доступности от объекта находятся станция метро "Нарвская" и густонаселённый проспект Стачек, на транспорте можно добраться от ЗСД и набережной Обводного канала.

Вокруг технопарка функционирует множество магазинов, мастерских и заведений общественного питания.
Помещение располагается на четвёртом этаже кирпичного тёплого здания. К нему подведено электричество и отопление (есть выделенная мощность). Установлены приточно-вытяжная вентиляция и грузовой лифт г/п 1000 кг, 1,9х2,39 м. В наличии водоотведение.
Высота потолков варьируется от 3.10 до 6.16 метра в зависимости от помещения.

Площадь снабжена доступом к интернету, цифровой телефонией и пожарной сигнализацией.
Во двор территории может заезжать грузовой транспорт.

Круглосуточная охрана. На территорию можно попасть при помощи электронного пропуска.
На объекте есть автостоянка и кафе.
+7 (812) 493-52-74
Перезвоните мне
Хотите посмотреть? Покажем вам это помещение и несколько похожих
Запишитесь на просмотр
Вас также может заинтересовать
45.2 м2
38 374.8 руб
75.8 м2
60 564.2 руб
190.6 м2
85 579.4 руб
442.7 м2
277 130.2 руб
768.8 м2
668 087.2 руб
2611.6 м2
2 637 716 руб
4089.6 м2
4 784 832 руб
5803.2 м2
6 615 648 руб