Назовите оператору контакт центра при звонке ваш промокод:    

Безопасная аренда

Подробнее

Онлайн просмотры и договор с цифровой подписью

Помещение
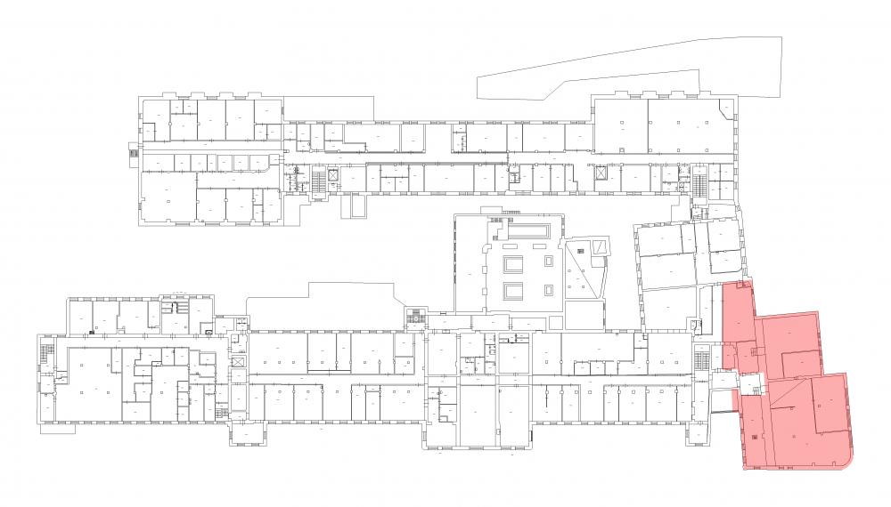
Этаж 2
Площадь 768.5 м2
Ставка 859 руб./м2
Характеристики
Безопасность
Охрана Круглосуточная
Коммуникации
Телефон есть
Интернет оптоволокно
В арендную плату входит
  • Профессиональное управление
  • НДС
Оплачивается отдельно
  • Клининг
План помещения
Описание
Производственный блок 768,5 кв. м в аренду без посредников рядом со станцией метро "Нарвская".
2-й этаж здания на Промышленной ул., д. 5.

Идеальный вариант для производства наружной рекламы.
На предлагаемой площади можно разместить основной цех с разделением на производственные зоны, а также оборудовать склад.

В помещениях много естественного освещения.

Есть грузовой лифт на 2 тонны (2 х 2,2 х 2,5).

Оснащение: выделенная электроэнергия, отопление, освещение, пожарная сигнализация.

Доступно подключение высокоскоростного интернета, цифровой телефонии.

В здании и на прилегающей территории ведётся круглосуточная охрана.
Действует система СКУД, которая позволяет вести учёт рабочего времени.
Проход осуществляется по электронным картам доступа.

В 5 минутах ходьбы находится станция метро "Нарвская".
Рядом пролегают крупные транспортные магистрали: проспекты Стачек и Старо-Петергофский, набережная Обводного канала.
На территории оборудована парковка.

Рядом располагаются торговые центры "Галерея 1814", "Нарвский" и "Кировский универмаг".
Также в пешей доступности есть кафе и столовые, магазины.
+7 (812) 493-52-74
Перезвоните мне
Хотите посмотреть? Покажем вам это помещение и несколько похожих
Запишитесь на просмотр
Вас также может заинтересовать
45.2 м2
38 374.8 руб
75.8 м2
60 564.2 руб
190.6 м2
85 579.4 руб
442.7 м2
277 130.2 руб
768.8 м2
668 087.2 руб
2611.6 м2
2 637 716 руб
4089.6 м2
4 784 832 руб
5803.2 м2
6 615 648 руб