Назовите оператору контакт центра при звонке ваш промокод:    

Безопасная аренда

Подробнее

Онлайн просмотры и договор с цифровой подписью

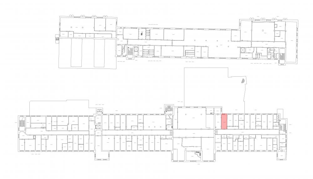
Помещение
Этаж 4
Площадь 25.8 м2
Ставка 853 руб./м2
Характеристики
Безопасность
Охрана Круглосуточная
Коммуникации
Телефон есть
Интернет оптоволокно
В арендную плату входит
  • Профессиональное управление
  • НДС
Оплачивается отдельно
  • Клининг
План помещения
Описание
Небольшой тёплый склад сдаётся в аренду на Промышленной улице.
Площадь: 25,8 кв. м.

Подойдёт для хранения личных вещей, а также товаров интернет-магазина.
В помещении высокий потолок, благодаря чему возможна установка многоярусных стеллажей.

Возможен круглосуточный режим работы.

Удобная прилегающая территория для проведения погрузочно-разгрузочных работ.

Доступ для транспорта и пешеходов осуществляется по пропускам.
Ведётся круглосуточная охрана и видеонаблюдение.

В помещении есть освещение и отопление, выделенная эл. мощность, пожарная сигнализация.
Отдельно оплачиваются эксплуатационные услуги, интернет и телефония, охраняемая парковка.

В пешей доступности есть кафе, столовые и магазины.

Станция метро "Нарвская" расположена всего в 5 минутах ходьбы.
Набережная Обводного канала и проспект Стачек находятся в непосредственной близости.
+7 (812) 493-52-74
Перезвоните мне
Хотите посмотреть? Покажем вам это помещение и несколько похожих
Запишитесь на просмотр
Вас также может заинтересовать
25 м2
21 225 руб
58.8 м2
34 339.2 руб
246.7 м2
88 565.3 руб
390.7 м2
300 839 руб
768.5 м2
660 141.5 руб
2097.5 м2
2 181 400 руб
4089.6 м2
4 903 430.4 руб
5803.2 м2
6 325 488 руб