Назовите оператору контакт центра при звонке ваш промокод:    

Безопасная аренда

Подробнее

Онлайн просмотры и договор с цифровой подписью

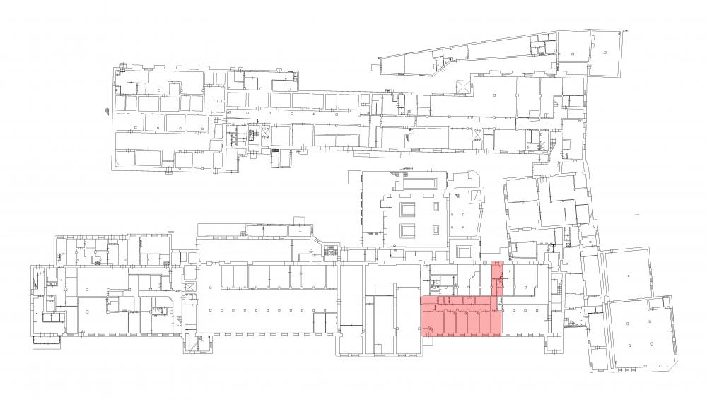
Помещение
Этаж 1
Площадь 257.6 м2
Ставка 899 руб./м2
Характеристики
Безопасность
Охрана Круглосуточная
Коммуникации
Телефон есть
Интернет оптоволокно
В арендную плату входит
  • Профессиональное управление
  • НДС
Оплачивается отдельно
  • Клининг
План помещения
Описание
Сдаётся в аренду склад на 1-м этаже здания в Кировском районе города.

Общая площадь блока - 257.6 кв. м.
Отдельный вход с Промышленной улицы, д.5.

Оснащение: выделенная электроэнергия, освещение, отопление.
Собственный санузел.

Вдоль всего фасада витринные окна.
Возможность размещения рекламной вывески.

На внутренней территории расположена парковка.

Ближайшая станция метро "Нарвская" расположена в 5 минутах.  
+7 (812) 493-52-74
Перезвоните мне
Хотите посмотреть? Покажем вам это помещение и несколько похожих
Запишитесь на просмотр
Вас также может заинтересовать
25 м2
21 225 руб
58.8 м2
34 339.2 руб
246.7 м2
88 565.3 руб
390.7 м2
300 839 руб
768.5 м2
660 141.5 руб
2097.5 м2
2 181 400 руб
4089.6 м2
4 903 430.4 руб
5803.2 м2
6 325 488 руб