Назовите оператору контакт центра при звонке ваш промокод:    

Безопасная аренда

Подробнее

Онлайн просмотры и договор с цифровой подписью

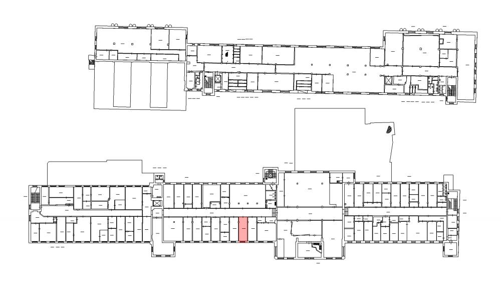
Помещение
Этаж 4
Площадь 26 м2
Ставка 644 руб./м2
Характеристики
Безопасность
Охрана Круглосуточная
Коммуникации
Телефон есть
Интернет оптоволокно
В арендную плату входит
  • Профессиональное управление
  • НДС
Оплачивается отдельно
  • Клининг
План помещения
Описание
Складское помещение сдаётся в аренду на территории технопарка по адресу: улица Промышленная, дом 5.
Площадь: 26 кв. м.
Этаж: 4.

Оснащение:
Электроснабжение.
Освещение.
Отопление.

Безопасность:
Датчики пожарной защиты.
Круглосуточная охрана.
Система контроля доступа.

Расположение:
Технопарк.
Развитая инфраструктура.
Удобный доступ.

Склад идеально подходит для хранения благодаря:
Удобному расположению в технопарке.
Наличию всех необходимых систем безопасности.
Современной инфраструктуре.

Приглашаем ознакомиться с помещением!
+7 (812) 493-52-74
Перезвоните мне
Хотите посмотреть? Покажем вам это помещение и несколько похожих
Запишитесь на просмотр
Вас также может заинтересовать
25 м2
21 225 руб
58.8 м2
34 339.2 руб
246.7 м2
88 565.3 руб
390.7 м2
300 839 руб
768.5 м2
660 141.5 руб
2097.5 м2
2 181 400 руб
4089.6 м2
4 903 430.4 руб
5803.2 м2
6 325 488 руб