Назовите оператору контакт центра при звонке ваш промокод:    

Безопасная аренда

Подробнее

Онлайн просмотры и договор с цифровой подписью

Помещение
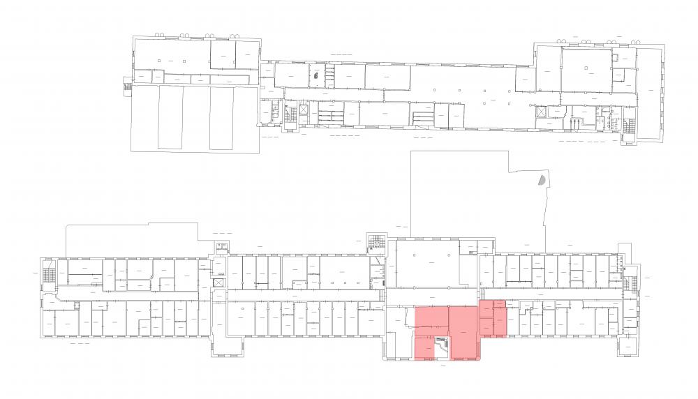
Этаж 4
Площадь 240.8 м2
Ставка 695 руб./м2
Характеристики
Безопасность
Охрана Круглосуточная
Коммуникации
Телефон есть
Интернет оптоволокно
В арендную плату входит
  • Профессиональное управление
  • НДС
Оплачивается отдельно
  • Клининг
План помещения
Описание
Аренда тёплого склада 241 кв. м.
Помещение находится по адресу: ул. Промышленная, дом 5, 4 этаж, территория технопарка "Промышленная".

В помещение проведено инженерное оснащение: выделенная электроэнергия, освещение, отопление, пожарная сигнализация.
Также для арендаторов доступно подключение интернета и телефонии по запросу.

Исключён доступ случайных посетителей - по всей территории ведётся круглосуточная охрана.
Проход и заезд осуществляется по магнитным картам доступа.

На территории для вашего комфорта есть зона парковки.
В шаговой доступности расположены торговые центры.

Склад находится на юго-западе, в Кировском районе.
Проспект Стачек, Старо-Петергофский проспект и набережная Обводного канала пролегают рядом с технопарком.
Станция метро "Нарвская" находится всего в 5 минутах ходьбы.

Предлагаемую в аренду площадь можно использовать как для склада интернет-магазина, так и под хранение мебели и личных вещей.
Звоните и записывайтесь на просмотр!
+7 (812) 493-52-74
Перезвоните мне
Хотите посмотреть? Покажем вам это помещение и несколько похожих
Запишитесь на просмотр
Вас также может заинтересовать
25 м2
21 225 руб
58.8 м2
34 339.2 руб
246.7 м2
88 565.3 руб
390.7 м2
300 839 руб
768.5 м2
660 141.5 руб
2097.5 м2
2 181 400 руб
4089.6 м2
4 903 430.4 руб
5803.2 м2
6 325 488 руб