Назовите оператору контакт центра при звонке ваш промокод:    

Безопасная аренда

Подробнее

Онлайн просмотры и договор с цифровой подписью

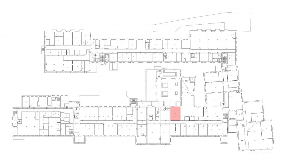
Помещение
Этаж 2
Площадь 61 м2
Ставка 490 руб./м2
Характеристики
Безопасность
Охрана Круглосуточная
Коммуникации
Телефон есть
Интернет оптоволокно
В арендную плату входит
  • Профессиональное управление
  • НДС
Оплачивается отдельно
  • Клининг
План помещения
Описание
Предлагается в аренду СКЛАД площадью 61 кв. м по адресу: ул. Промышленная, д.5.

Расположен на 2-м этаже здания.
Кабинетная планировка.

Оснащение: выделенная электроэнергия, освещение, отопление.

Действует система СКУД.
Проход осуществляется по электронным картам доступа.

На территории есть охраняемая парковка.
Проход на территорию осуществляется по электронным картам доступа.
Охрана 24 часа.

Ближайшая станция метро - "Нарвская".
+7 (812) 493-52-74
Перезвоните мне
Хотите посмотреть? Покажем вам это помещение и несколько похожих
Запишитесь на просмотр
Вас также может заинтересовать
25 м2
21 225 руб
58.8 м2
34 339.2 руб
246.7 м2
88 565.3 руб
390.7 м2
300 839 руб
768.5 м2
660 141.5 руб
2097.5 м2
2 181 400 руб
4089.6 м2
4 903 430.4 руб
5803.2 м2
6 325 488 руб