Назовите оператору контакт центра при звонке ваш промокод:    

Безопасная аренда

Подробнее

Онлайн просмотры и договор с цифровой подписью

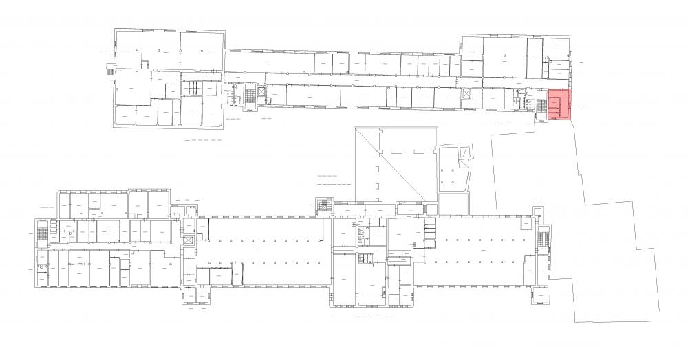
Помещение
Этаж 3
Площадь 54.5 м2
Ставка 631 руб./м2
Характеристики
Безопасность
Охрана Круглосуточная
Коммуникации
Телефон есть
Интернет оптоволокно
В арендную плату входит
  • Профессиональное управление
  • НДС
Оплачивается отдельно
  • Клининг
План помещения
Описание
Аренда складских помещений общей площадью 53 кв. м в пешей доступности от станции метро "Нарвская".

Для удобства арендатора помещения оснащены отоплением, освещением, выделенной электрической мощностью.
Дополнительные услуги: интернет и цифровая телефония.

Территория круглосуточно охраняется, действует пропускной режим.
В деловом комплексе есть кафе и оборудованная парковка.

Звоните и записывайтесь на просмотр!
+7 (812) 493-52-74
Перезвоните мне
Хотите посмотреть? Покажем вам это помещение и несколько похожих
Запишитесь на просмотр
Вас также может заинтересовать
25 м2
21 225 руб
58.8 м2
34 339.2 руб
246.7 м2
88 565.3 руб
390.7 м2
300 839 руб
768.5 м2
660 141.5 руб
2097.5 м2
2 181 400 руб
4089.6 м2
4 903 430.4 руб
5803.2 м2
6 325 488 руб