Назовите оператору контакт центра при звонке ваш промокод:    

Безопасная аренда

Подробнее

Онлайн просмотры и договор с цифровой подписью

Помещение
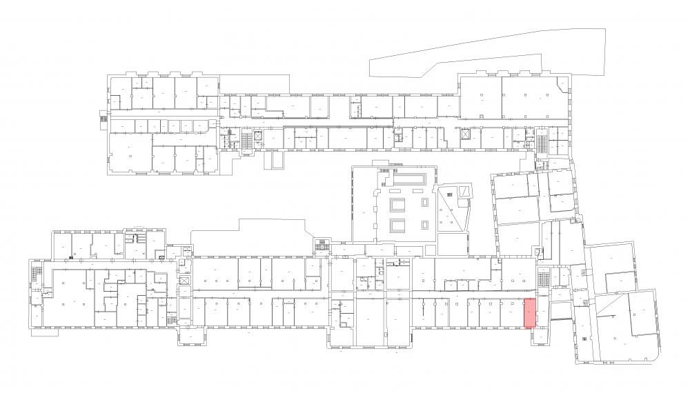
Этаж 2
Площадь 27.4 м2
Ставка 703 руб./м2
Характеристики
Безопасность
Охрана Круглосуточная
Коммуникации
Телефон есть
Интернет оптоволокно
В арендную плату входит
  • Профессиональное управление
  • НДС
Оплачивается отдельно
  • Клининг
План помещения
Описание
Предлагается в аренду складское помещение площадью 27,4 кв. м на втором этаже здания по адресу: ул. Промышленная, дом 5.
Транспортная доступность: в пешей доступности станция метро "Нарвская".
Этаж: второй.

Коммуникации:
*Выделенная электрическая мощность.
*Полноценное освещение.
*Отопление.

Безопасность и дополнительные услуги:
*Круглосуточная охрана территории.
*Система контроля доступа.
*Наличие парковки.
*Пропускной режим.

Склад идеально подойдет для хранения товаров, материалов или оборудования.
Помещение готово к немедленному заезду.
+7 (812) 493-52-74
Перезвоните мне
Хотите посмотреть? Покажем вам это помещение и несколько похожих
Запишитесь на просмотр
Вас также может заинтересовать
25 м2
21 225 руб
58.8 м2
34 339.2 руб
246.7 м2
88 565.3 руб
390.7 м2
300 839 руб
768.5 м2
660 141.5 руб
2097.5 м2
2 181 400 руб
4089.6 м2
4 903 430.4 руб
5803.2 м2
6 325 488 руб