Назовите оператору контакт центра при звонке ваш промокод:    

Безопасная аренда

Подробнее

Онлайн просмотры и договор с цифровой подписью

Помещение
Этаж 4
Площадь 71.5 м2
Ставка 799 руб./м2
Характеристики
Безопасность
Охрана Круглосуточная
Коммуникации
Телефон есть
Интернет оптоволокно
В арендную плату входит
  • Профессиональное управление
  • НДС
Оплачивается отдельно
  • Клининг
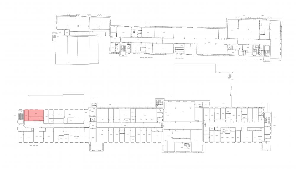
План помещения
Описание
В аренду предлагается офисный блок площадью 71.4 кв. м на Промышленной ул., дом 5.
Блок расположен на четвёртом этаже здания.

Кабинетная планировка.
Услуги: высокоскоростной интернет и цифровая телефония.
Оснащение: отопление, освещение, электроснабжение.

Инфраструктура: столовая, парковка.

Ведётся круглосуточная охрана.
Проход осуществляется по электронным картам доступа.

Более подробную информацию можете узнать у менеджеров колл-центра.
+7 (812) 493-52-74
Перезвоните мне
Хотите посмотреть? Покажем вам это помещение и несколько похожих
Запишитесь на просмотр
Вас также может заинтересовать
45.2 м2
38 374.8 руб
75.8 м2
60 564.2 руб
246.7 м2
88 565.3 руб
390.7 м2
300 839 руб
768.5 м2
660 141.5 руб
2097.5 м2
2 181 400 руб
4089.6 м2
4 784 832 руб
5803.2 м2
6 325 488 руб