Назовите оператору контакт центра при звонке ваш промокод:    

Безопасная аренда

Подробнее

Онлайн просмотры и договор с цифровой подписью

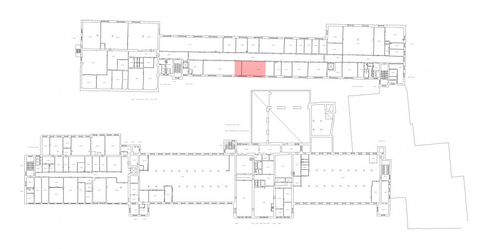
Помещение
Этаж 3
Площадь 76 м2
Ставка 849 руб./м2
Характеристики
Безопасность
Охрана Круглосуточная
Коммуникации
Телефон есть
Интернет оптоволокно
В арендную плату входит
  • Профессиональное управление
  • НДС
Оплачивается отдельно
  • Клининг
План помещения
Описание
Аренда производственного ЦЕХА в Кировском районе города.
Помещение площадью 76 кв. м расположено на 3-м ЭТАЖЕ здания на Промышленной ул., дом 5.

ИНЖЕНЕРНОЕ ОБЕСПЕЧЕНИЕ: выделенная электроэнергия, освещение, отопление.
Помещение находиться рядом с грузовым лифтом, г/п 2 т.

Действует система СКУД.
ОХРАНА 24 часа.
ДОПОЛНИТЕЛЬНЫЕ УСЛУГИ: высокоскоростной интернет и цифровая телефония.

Ближайшая станция МЕТРО - "Нарвская".
+7 (812) 493-52-74
Перезвоните мне
Хотите посмотреть? Покажем вам это помещение и несколько похожих
Запишитесь на просмотр
Вас также может заинтересовать
45.2 м2
38 374.8 руб
75.8 м2
60 564.2 руб
190.6 м2
85 579.4 руб
442.7 м2
277 130.2 руб
768.8 м2
668 087.2 руб
2611.6 м2
2 637 716 руб
4089.6 м2
4 784 832 руб
5803.2 м2
6 615 648 руб