Назовите оператору контакт центра при звонке ваш промокод:    

Безопасная аренда

Подробнее

Онлайн просмотры и договор с цифровой подписью

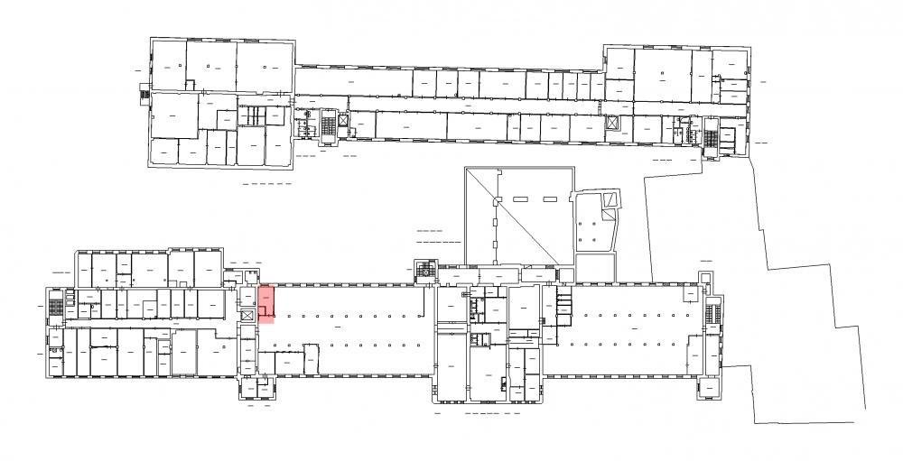
Помещение
Этаж 3
Площадь 28.4 м2
Ставка 849 руб./м2
Характеристики
Безопасность
Охрана Круглосуточная
Коммуникации
Телефон есть
Интернет оптоволокно
В арендную плату входит
  • Профессиональное управление
  • НДС
Оплачивается отдельно
  • Клининг
План помещения
Описание
На территории технопарка "Промышленная" сдаётся в аренду производственное помещение площадью 28.8 кв. м.
Шаговая доступность от станции метро "Нарвская".

3-й этаж здания.
На этаже есть грузовой лифт г/п 2 т (2,0х2,2х2,5 м).

Высота потолка 3,48 м.
Оснащение: выделенная электроэнергия, освещение, отопление.
Услуги: интернет и цифровая телефония.

Действует контрольно-пропускная система.
Возможен круглосуточный режим работы.

Звоните и записывайтесь на просмотр!
+7 (812) 493-52-74
Перезвоните мне
Хотите посмотреть? Покажем вам это помещение и несколько похожих
Запишитесь на просмотр
Вас также может заинтересовать
45.2 м2
38 374.8 руб
75.8 м2
60 564.2 руб
190.6 м2
85 579.4 руб
442.7 м2
277 130.2 руб
768.8 м2
668 087.2 руб
2611.6 м2
2 637 716 руб
4089.6 м2
4 784 832 руб
5803.2 м2
6 615 648 руб