Назовите оператору контакт центра при звонке ваш промокод:    

Безопасная аренда

Подробнее

Онлайн просмотры и договор с цифровой подписью

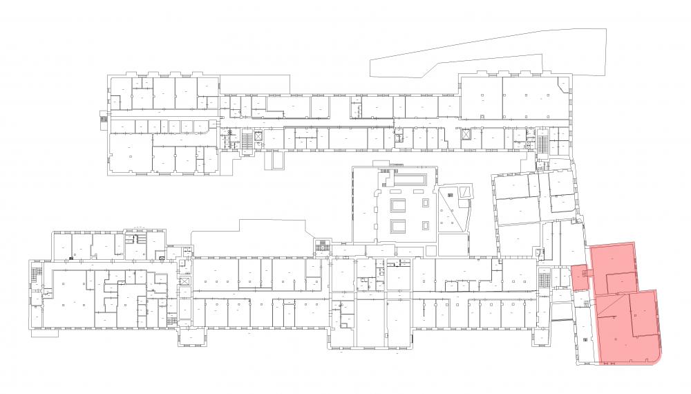
Помещение
Этаж 2
Площадь 547.6 м2
Ставка 659 руб./м2
Характеристики
Безопасность
Охрана Круглосуточная
Коммуникации
Телефон есть
Интернет оптоволокно
В арендную плату входит
  • Профессиональное управление
  • НДС
Оплачивается отдельно
  • Клининг
План помещения
Описание
Аренда производственного помещения 547,6 кв. м под типографию.
Помещение находится по адресу: ул. Промышленная, д. 5, 2 этаж.

В здании работает грузовой лифт на 2 тонны (габариты 2 х 2,2 х 2,5 м), что облегчает транспортировку оборудования и материалов.
На прилегающей территории возможно проведение погрузочно-разгрузочных работ.
Площади и высоты потолков 3,6 м хватит для организации многоярусного стеллажного хранения.

Оснащение: выделенная электроэнергия, освещение, отопление, пожарная сигнализация.
Также арендаторам доступно подключение интернета и телефонии.

Есть охраняемая парковка.

На территории осуществляется круглосуточная охрана.
Доступ по магнитным пропускам.

На автомобиле попасть на улицу Промышленную можно с проспекта Стачек.
Рядом пролегают Старо-Петергофский проспект и набережная Обводного канала.

Добраться пешком от станции метро "Нарвская" можно всего за 5 минут.
Также в пешей доступности есть автобусные остановки.
+7 (812) 493-52-74
Перезвоните мне
Хотите посмотреть? Покажем вам это помещение и несколько похожих
Запишитесь на просмотр
Вас также может заинтересовать
45.2 м2
38 374.8 руб
75.8 м2
60 564.2 руб
190.6 м2
85 579.4 руб
442.7 м2
277 130.2 руб
768.8 м2
668 087.2 руб
2611.6 м2
2 637 716 руб
4089.6 м2
4 784 832 руб
5803.2 м2
6 615 648 руб