Назовите оператору контакт центра при звонке ваш промокод:    

Безопасная аренда

Подробнее

Онлайн просмотры и договор с цифровой подписью

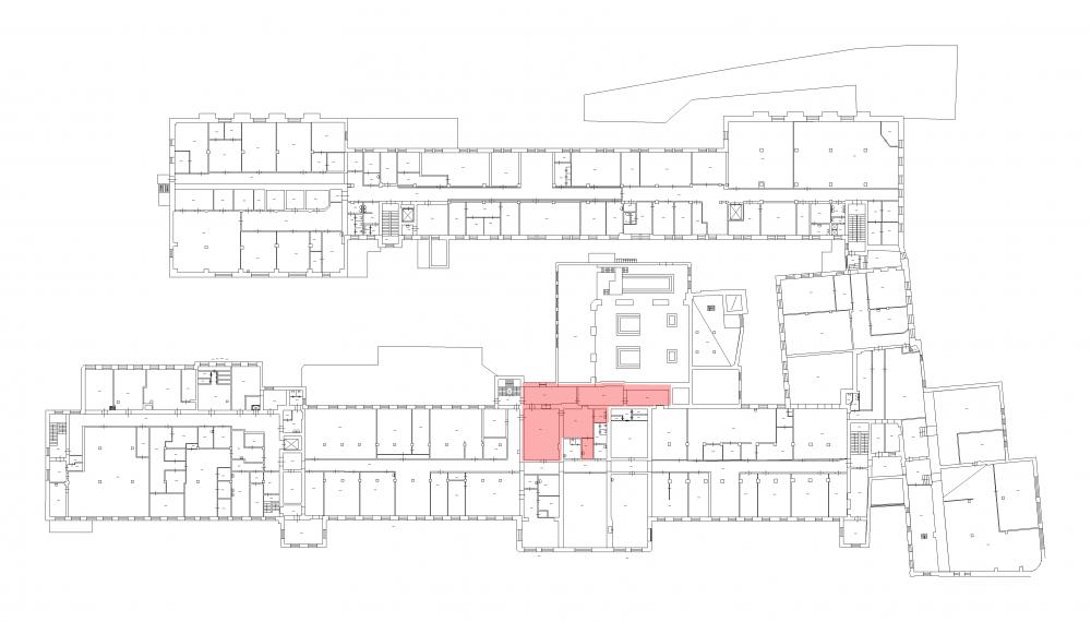
Помещение
Этаж 2
Площадь 212.4 м2
Ставка 699 руб./м2
Характеристики
Безопасность
Охрана Круглосуточная
Коммуникации
Телефон есть
Интернет оптоволокно
В арендную плату входит
  • Профессиональное управление
  • НДС
Оплачивается отдельно
  • Клининг
План помещения
Описание
В Кировском районе города в аренду сдаётся помещение под мастерскую.

Общий метраж 212,4 кв. м.
Расположение: 2-й этаж здания на Промышленной ул., дом 5.
На этаже есть грузовой лифт 2,9*1,9*2,1 м г/п 3 т.

В помещение пол бетонный, линолеум.  Стены - окрашенные.  С/у в помещение.
В помещение заведена мощность 15 кВт (есть возможность увеличить).
Установлены датчики пожарной безопасности.  

Объект под круглосуточной охраной.
Проход/проезд по пропускам.
+7 (812) 493-52-74
Перезвоните мне
Хотите посмотреть? Покажем вам это помещение и несколько похожих
Запишитесь на просмотр
Вас также может заинтересовать
45.2 м2
38 374.8 руб
75.8 м2
60 564.2 руб
190.6 м2
85 579.4 руб
442.7 м2
277 130.2 руб
768.8 м2
668 087.2 руб
2611.6 м2
2 637 716 руб
4089.6 м2
4 784 832 руб
5803.2 м2
6 615 648 руб