Назовите оператору контакт центра при звонке ваш промокод:    

Безопасная аренда

Подробнее

Онлайн просмотры и договор с цифровой подписью

Помещение
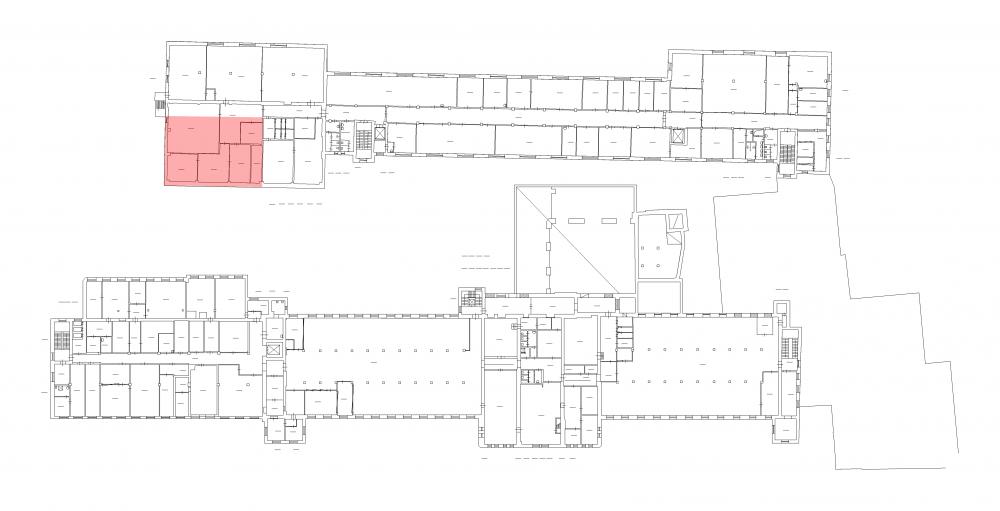
Этаж 3
Площадь 249.4 м2
Ставка 689 руб./м2
Характеристики
Безопасность
Охрана Круглосуточная
Коммуникации
Телефон есть
Интернет оптоволокно
В арендную плату входит
  • Профессиональное управление
  • НДС
Оплачивается отдельно
  • Клининг
План помещения
Описание
Просторное помещение для художественной мастерской.
Расположение: ул. Промышленная, дом 5.

Конструктивные особенности:
*Бетонный пол.
*Стены из газобетона и кирпича.
*Разноуровневые потолки (от 1,8 до 5,7 м).
*Грузовой лифт- грузоподъемность 2 тонны, габариты 1,8×2,3×2,2 м.

Оснащение:
*Отопление.
*Освещение.
*Пожарная сигнализация.

Система безопасности:
*Датчики пожарной безопасности.
*Круглосуточная охрана.
*Пропускной режим (магнитные пропуска).

Контроль доступа:
*Строгий пропускной режим на территорию.
*Видеонаблюдение.

Возможности помещения:
*Организация рабочих зон для художников.
*Размещение выставочного пространства.
*Создание складских помещений для материалов.
*Оборудование зон для проведения мастер-классов.
*Организация административной зоны.

Преимущества для художественной мастерской:
*Простор для творческого процесса.
*Возможность зонирования пространства.
*Удобная транспортировка материалов благодаря грузовому лифту.
*Высокие потолки для комфортной работы.
*Надежная система безопасности.

Помещение идеально подходит для:
*Художественной мастерской.
*Выставочного пространства.
*Школы искусств.
*Творческого центра.
*Арт-студии.

Готовы рассмотреть индивидуальные условия аренды и помочь с организацией пространства под ваши творческие задачи.
+7 (812) 493-52-74
Перезвоните мне
Хотите посмотреть? Покажем вам это помещение и несколько похожих
Запишитесь на просмотр
Вас также может заинтересовать
45.2 м2
38 374.8 руб
75.8 м2
60 564.2 руб
190.6 м2
85 579.4 руб
442.7 м2
277 130.2 руб
768.8 м2
668 087.2 руб
2611.6 м2
2 637 716 руб
4089.6 м2
4 784 832 руб
5803.2 м2
6 615 648 руб