Назовите оператору контакт центра при звонке ваш промокод:    

Безопасная аренда

Подробнее

Онлайн просмотры и договор с цифровой подписью

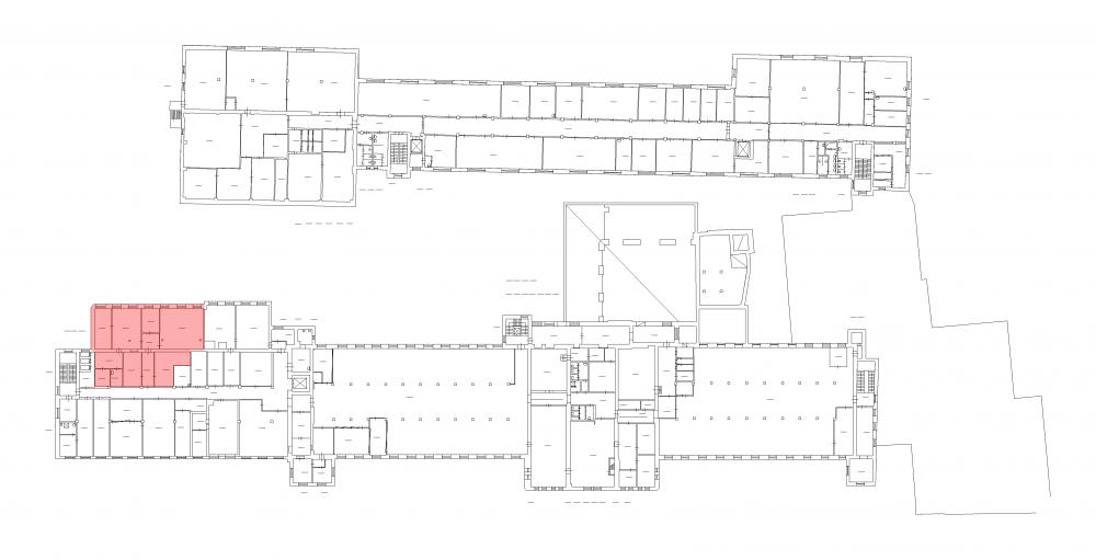
Помещение
Этаж 3
Площадь 255.1 м2
Ставка 589 руб./м2
Характеристики
Безопасность
Охрана Круглосуточная
Коммуникации
Телефон есть
Интернет оптоволокно
В арендную плату входит
  • Профессиональное управление
  • НДС
Оплачивается отдельно
  • Клининг
План помещения
Описание
Собственник предлагает в аренду производственный блок площадью 255,1 кв. м.

В здании работают грузовые лифты, установлены камеры видеонаблюдения и датчики пожарной сигнализации.
В деловом комплексе проведены высокоскоростной интернет и цифровая телефония, работает кафе, оборудована охраняемая парковка.

Помещения находятся в Кировском районе по адресу: ул. Промышленной, дом 5.
В пешей доступности — станция метро "Нарвская", проспект Стачек.

Оснащение: электричество, освещение, отопление.
Собственный санузел.
+7 (812) 493-52-74
Перезвоните мне
Хотите посмотреть? Покажем вам это помещение и несколько похожих
Запишитесь на просмотр
Вас также может заинтересовать
45.2 м2
38 374.8 руб
75.8 м2
60 564.2 руб
190.6 м2
85 579.4 руб
442.7 м2
277 130.2 руб
768.8 м2
668 087.2 руб
2611.6 м2
2 637 716 руб
4089.6 м2
4 784 832 руб
5803.2 м2
6 615 648 руб