Назовите оператору контакт центра при звонке ваш промокод:    

Безопасная аренда

Подробнее

Онлайн просмотры и договор с цифровой подписью

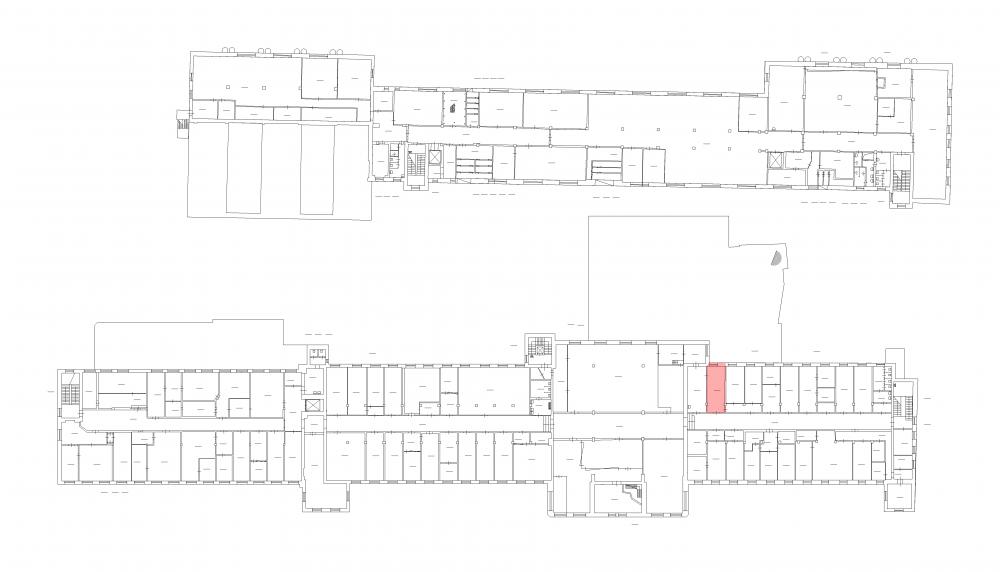
Помещение
Этаж 4
Площадь 26 м2
Ставка 849 руб./м2
Характеристики
Безопасность
Охрана Круглосуточная
Коммуникации
Телефон есть
Интернет оптоволокно
В арендную плату входит
  • Профессиональное управление
  • НДС
Оплачивается отдельно
  • Клининг
План помещения
Описание
В аренду предлагается помещение под производство у станции метро "Нарвская".
Площадь 26 кв. м.

Прекрасный вариант для небольшой мастерской по изготовлению свечей.
Окна выходят в тихий двор.
В помещении высокие потолки – можно разместить стеллажи для хранения инструментов.

Во внутреннем дворе возможно проведение погрузочно-разгрузочных работ.

Действует контрольно-пропускная система.
Проход и заезд осуществляется по пропускам.
Ведётся круглосуточная охрана и видеонаблюдение.

В помещении есть выделенная электроэнергия, отопление, освещение, пожарная сигнализация.

Дополнительно подключаются интернет и телефония.
При необходимости предоставляем доступ к охраняемой парковке.

Адрес: Промышленной ул., д. 5, 4 этаж.
Шаговая доступность от станции метро "Нарвская".
Рядом пролегает проспект Стачек.

Рядом открыты торговые центры "Галерея 1814", "Нарвский" и "Кировский универмаг".
Также в пешей доступности есть кафе и столовые, магазины.
+7 (812) 493-52-74
Перезвоните мне
Хотите посмотреть? Покажем вам это помещение и несколько похожих
Запишитесь на просмотр
Вас также может заинтересовать
45.2 м2
38 374.8 руб
75.8 м2
60 564.2 руб
190.6 м2
85 579.4 руб
442.7 м2
277 130.2 руб
768.8 м2
668 087.2 руб
2611.6 м2
2 637 716 руб
4089.6 м2
4 784 832 руб
5803.2 м2
6 615 648 руб