Назовите оператору контакт центра при звонке ваш промокод:    

Безопасная аренда

Подробнее

Онлайн просмотры и договор с цифровой подписью

Помещение
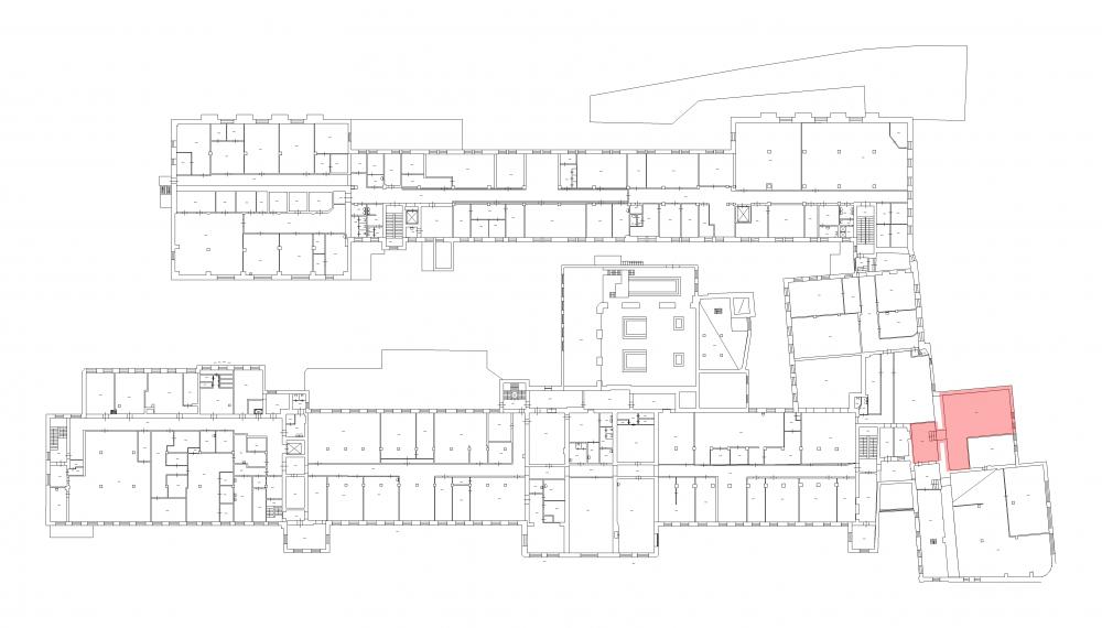
Этаж 2
Площадь 160.6 м2
Ставка 670 руб./м2
Характеристики
Безопасность
Охрана Круглосуточная
Коммуникации
Телефон есть
Интернет оптоволокно
В арендную плату входит
  • Профессиональное управление
  • НДС
Оплачивается отдельно
  • Клининг
План помещения
Описание
Аренда помещения под мастерскую в Кировском районе в 5 минутах от станции метро "Нарвская".

Расположение: ул. Промышленная, дом 5, 2 этаж.
Общая площадь - 160.6 кв. м.

Есть грузовой лифт, находится в 50 м от помещения.

Проведены необходимые инженерные коммуникации: освещение, отопление, выделенная электрическая мощность.

Объект находится под круглосуточной охраной.
Проход/проезд осуществляется по пропускам.
+7 (812) 493-52-74
Перезвоните мне
Хотите посмотреть? Покажем вам это помещение и несколько похожих
Запишитесь на просмотр
Вас также может заинтересовать
45.2 м2
38 374.8 руб
75.8 м2
60 564.2 руб
190.6 м2
85 579.4 руб
442.7 м2
277 130.2 руб
768.8 м2
668 087.2 руб
2611.6 м2
2 637 716 руб
4089.6 м2
4 784 832 руб
5803.2 м2
6 615 648 руб