Назовите оператору контакт центра при звонке ваш промокод:    

Безопасная аренда

Подробнее

Онлайн просмотры и договор с цифровой подписью

Помещение
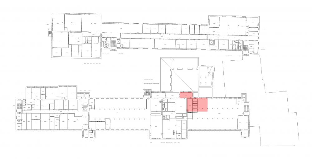
Этаж 3
Площадь 135.9 м2
Ставка 659 руб./м2
Характеристики
Безопасность
Охрана Круглосуточная
Коммуникации
Телефон есть
Интернет оптоволокно
В арендную плату входит
  • Профессиональное управление
  • НДС
Оплачивается отдельно
  • Клининг
План помещения
Описание
На территории технопарка "Промышленная" в аренду сдаётся помещение площадью 135.9 кв. м под мастерскую.

В помещениях потолки высотой 3,5 м, беспылевое покрытие.
Нагрузка на пол 500 кг.

3-й этаж здания.
В здании есть грузовой лифт 2т (2,4х1,9х2,2м).

Помещение оснащено выделенной электрической мощностью, освещением, отоплением.

Высокий уровень безопасности на объекте обеспечивают круглосуточная охрана и система контроля и управления доступом.

Ближайшая станция метро "Нарвская" расположена в 5 минутах.
+7 (812) 493-52-74
Перезвоните мне
Хотите посмотреть? Покажем вам это помещение и несколько похожих
Запишитесь на просмотр
Вас также может заинтересовать
45.2 м2
38 374.8 руб
75.8 м2
60 564.2 руб
190.6 м2
85 579.4 руб
442.7 м2
277 130.2 руб
768.8 м2
668 087.2 руб
2611.6 м2
2 637 716 руб
4089.6 м2
4 784 832 руб
5803.2 м2
6 615 648 руб