Назовите оператору контакт центра при звонке ваш промокод:    

Безопасная аренда

Подробнее

Онлайн просмотры и договор с цифровой подписью

Помещение
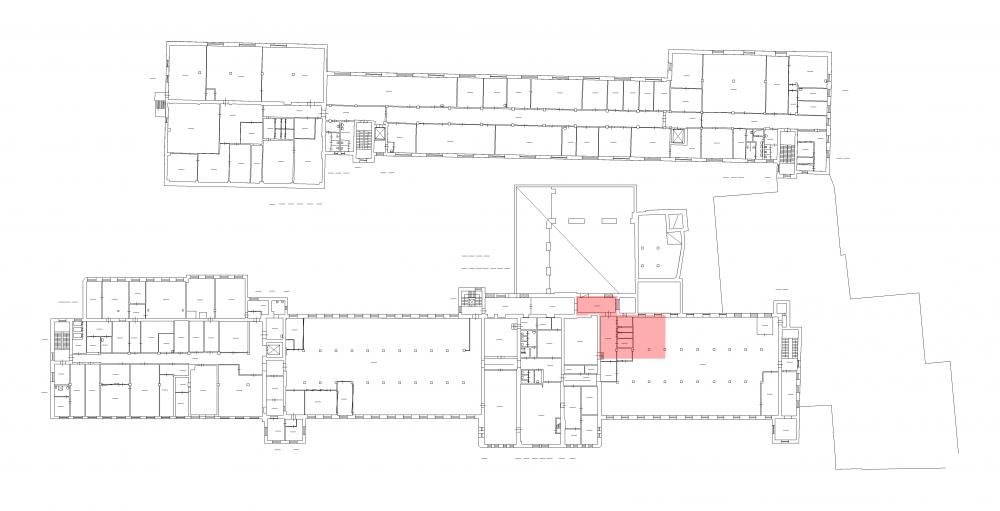
Этаж 3
Площадь 134.6 м2
Ставка 690 руб./м2
Характеристики
Безопасность
Охрана Круглосуточная
Коммуникации
Телефон есть
Интернет оптоволокно
В арендную плату входит
  • Профессиональное управление
  • НДС
Оплачивается отдельно
  • Клининг
План помещения
Описание
ПРОИЗВОДСТВЕННОЕ помещение для ремонта бытовой техники общей площадью 134.6 кв. м сдаётся в аренду в Кировском районе города.
Ближайшая станция МЕТРО - "Нарвская".

ОТДЕЛКА: газобетонные стены, потолки высотой 3,50 м, бетонный пол.
Оснащение: выделенная электроэнергия, освещение, отопление.

Действует система СКУД.
ОХРАНА 24 часа.
ДОПОЛНИТЕЛЬНЫЕ УСЛУГИ: высокоскоростной интернет и цифровая телефония.

Более подробную информацию можете узнать у менеджеров колл-центра.
+7 (812) 493-52-74
Перезвоните мне
Хотите посмотреть? Покажем вам это помещение и несколько похожих
Запишитесь на просмотр
Вас также может заинтересовать
45.2 м2
38 374.8 руб
75.8 м2
60 564.2 руб
190.6 м2
85 579.4 руб
442.7 м2
277 130.2 руб
768.8 м2
668 087.2 руб
2611.6 м2
2 637 716 руб
4089.6 м2
4 784 832 руб
5803.2 м2
6 615 648 руб