Назовите оператору контакт центра при звонке ваш промокод:    

Безопасная аренда

Подробнее

Онлайн просмотры и договор с цифровой подписью

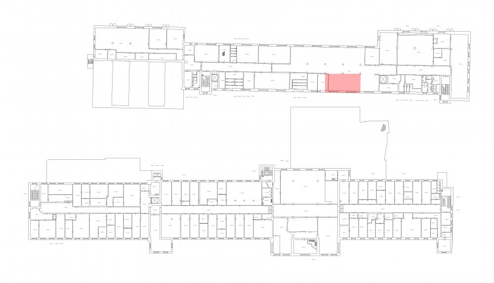
Помещение
Этаж 4
Площадь 76 м2
Ставка 799 руб./м2
Характеристики
Безопасность
Охрана Круглосуточная
Коммуникации
Телефон есть
Интернет оптоволокно
В арендную плату входит
  • Профессиональное управление
  • НДС
Оплачивается отдельно
  • Клининг
План помещения
Описание
В 5 минутах пешком от станции метро "Нарвская" в аренду сдается производственно-складское помещение.
Общая площадь составляет 76 кв. м.

Оснащение: выделенная электрическая мощность, отопление, освещение.

В распоряжении арендатора: парковка во внутреннем дворе.
Объект находится под круглосуточной охраной.

Здание расположено в Кировском районе города по адресу: ул. Промышленная, д. 5.
+7 (812) 493-52-74
Перезвоните мне
Хотите посмотреть? Покажем вам это помещение и несколько похожих
Запишитесь на просмотр
Вас также может заинтересовать
45.2 м2
38 374.8 руб
75.8 м2
60 564.2 руб
190.6 м2
85 579.4 руб
442.7 м2
277 130.2 руб
768.8 м2
668 087.2 руб
2611.6 м2
2 637 716 руб
4089.6 м2
4 784 832 руб
5803.2 м2
6 615 648 руб