Назовите оператору контакт центра при звонке ваш промокод:    

Безопасная аренда

Подробнее

Онлайн просмотры и договор с цифровой подписью

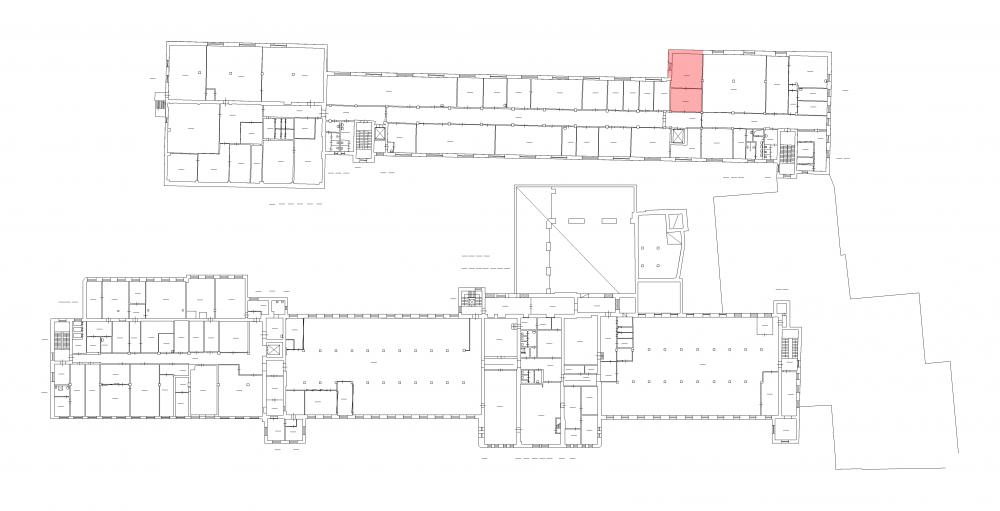
Помещение
Этаж 3
Площадь 75.1 м2
Ставка 639 руб./м2
Характеристики
Безопасность
Охрана Круглосуточная
Коммуникации
Телефон есть
Интернет оптоволокно
В арендную плату входит
  • Профессиональное управление
  • НДС
Оплачивается отдельно
  • Клининг
План помещения
Описание
По адресу: ул. Промышленная, д. 5 сдаётся в аренду производственное помещение площадью 75.1 кв. м.

Высота потолка 3,82 м, окрашенные стены, кафель на полу.
Помещение оснащено: отоплением, освещением, выделенной электрической мощностью.

Безопасность на объекте обеспечивает круглосуточная охрана.
На территории действует система контроля и управления доступом.
Проход осуществляется по электронным картам доступа.

На территории есть парковка.
В непосредственной близости расположена станция метро "Нарвская".
+7 (812) 493-52-74
Перезвоните мне
Хотите посмотреть? Покажем вам это помещение и несколько похожих
Запишитесь на просмотр
Вас также может заинтересовать
45.2 м2
38 374.8 руб
75.8 м2
60 564.2 руб
190.6 м2
85 579.4 руб
442.7 м2
277 130.2 руб
768.8 м2
668 087.2 руб
2611.6 м2
2 637 716 руб
4089.6 м2
4 784 832 руб
5803.2 м2
6 615 648 руб