Назовите оператору контакт центра при звонке ваш промокод:    

Безопасная аренда

Подробнее

Онлайн просмотры и договор с цифровой подписью

Помещение
Этаж 2
Площадь 390.3 м2
Ставка 522 руб./м2
Характеристики
Безопасность
Охрана Круглосуточная
Коммуникации
Телефон есть
Интернет оптоволокно
В арендную плату входит
  • Профессиональное управление
  • НДС
Оплачивается отдельно
  • Клининг
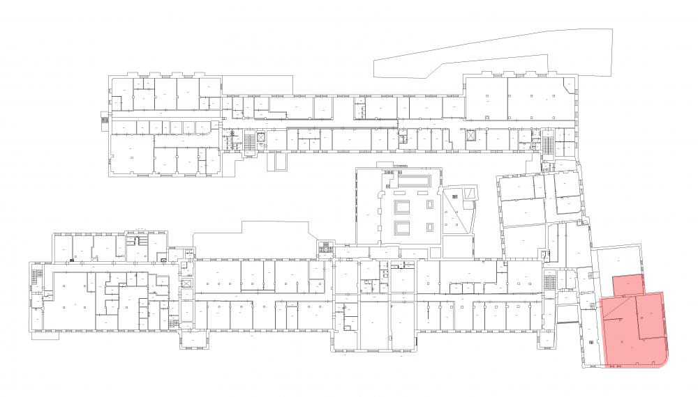
План помещения
Описание
Сдаётся в аренду блок помещений под МАСТЕРСКУЮ на Промышленной ул., д.5.

Смотреть можно уже сейчас!

Помещения общей ПЛОЩАДЬЮ 390,3 кв. м расположены на 2-м ЭТАЖЕ здания.
Есть грузовой лифт 2 т (2,0х2,2х2,5).

Для удобства арендатора ПРОВЕДЕНЫ электричество, отопление, освещение, пожарная сигнализация.
Также предоставляются УСЛУГИ ПОЛЬЗОВАНИЯ высокоскоростным интернетом и цифровой телефонией.

Высокий уровень безопасности на объекте обусловлен наличием круглосуточной ОХРАНЫ.
Доступ на территорию осуществляется по ЭЛЕКТРОННЫМ КАРТАМ

На территории есть ПАРКОВКА.

В 5 минутах находится станция МЕТРО "Нарвская".
Транспортную доступность обеспечивают набережная Обводного канала и проспект Стачек.

Для уточнения условий сделки, пожалуйста, обратитесь к менеджерам нашего контактного центра.
+7 (812) 493-52-74
Перезвоните мне
Хотите посмотреть? Покажем вам это помещение и несколько похожих
Запишитесь на просмотр
Вас также может заинтересовать
45.2 м2
38 374.8 руб
75.8 м2
60 564.2 руб
190.6 м2
85 579.4 руб
442.7 м2
277 130.2 руб
768.8 м2
668 087.2 руб
2611.6 м2
2 637 716 руб
4089.6 м2
4 784 832 руб
5803.2 м2
6 615 648 руб