Назовите оператору контакт центра при звонке ваш промокод:    

Безопасная аренда

Подробнее

Онлайн просмотры и договор с цифровой подписью

Помещение
Этаж 3
Площадь 2 564.8 м2
Ставка 1 040 руб./м2
Характеристики
Безопасность
Охрана Круглосуточная
Коммуникации
Телефон есть
Интернет оптоволокно
В арендную плату входит
  • Профессиональное управление
  • НДС
Оплачивается отдельно
  • Клининг
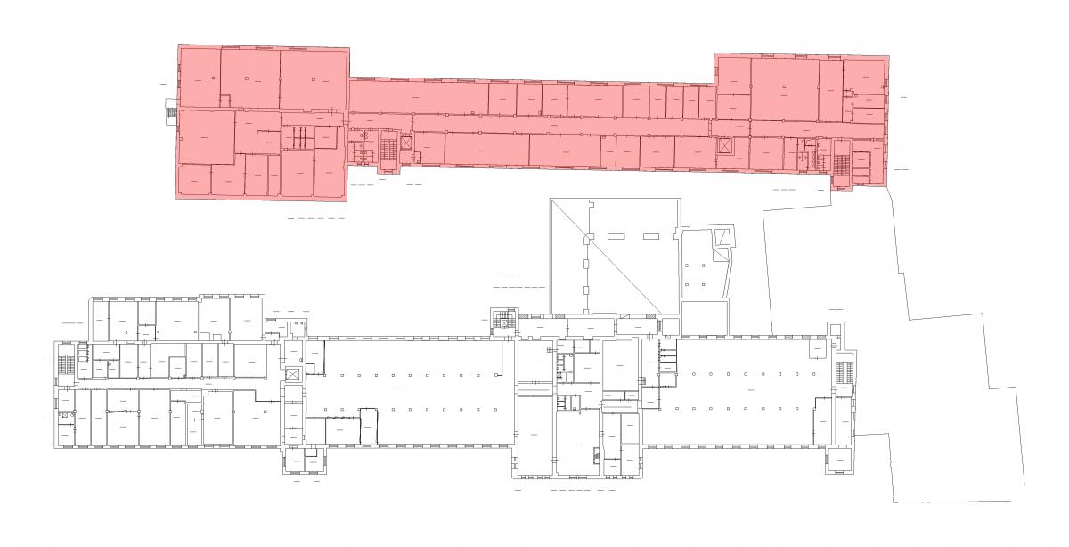
План помещения
Описание
По адресу: ул. Промышленная, д. 5 сдаётся в аренду большое производственное помещение, площадь которого составляет 2564,8 кв.м.

Объект находится в непосредственной близости от станции метро "Нарвская", также легко добираться от проходящего рядом проспекта Стачек. Транспортная доступность от ЗСД и набережной Обводного канала.

Предлагаемая площадь занимает целое крыло на 3-м этаже бывшего заводского строения. К ней подведены все коммуникации, канализация, вентиляция, электричество и отопление. В наличии выделенные мощности. Высота потолков колеблется от 3.48 до 4.16 метра.
В помещениях проведены скоростной интернет и цифровая телефония. Работает пожарная сигнализация. Есть возможность пользоваться грузовым лифтом г/п 1000 кг, 1,9х2,39 м и проезжать во двор на грузовых автомобилях.

Территория круглосуточно охраняется, имеются системы контроля доступа и видеонаблюдения.

Для арендаторов оборудована внутренняя парковка. Имеется столовая.
+7 (812) 493-52-74
Перезвоните мне
Хотите посмотреть? Покажем вам это помещение и несколько похожих
Запишитесь на просмотр
Вас также может заинтересовать
45.2 м2
38 374.8 руб
75.8 м2
60 564.2 руб
190.6 м2
85 579.4 руб
442.7 м2
277 130.2 руб
768.8 м2
668 087.2 руб
2611.6 м2
2 637 716 руб
4089.6 м2
4 784 832 руб
5803.2 м2
6 615 648 руб