Назовите оператору контакт центра при звонке ваш промокод:    

Безопасная аренда

Подробнее

Онлайн просмотры и договор с цифровой подписью

Помещение
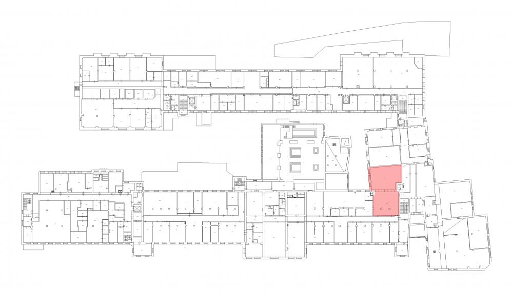
Этаж 2
Площадь 197 м2
Ставка 582 руб./м2
Характеристики
Безопасность
Охрана Круглосуточная
Коммуникации
Телефон есть
Интернет оптоволокно
В арендную плату входит
  • Профессиональное управление
  • НДС
Оплачивается отдельно
  • Клининг
План помещения
Описание
Производственное помещение сдаётся в аренду по адресу: Промышленная улица, д. 5.
До станции метро "Нарвская" 5 минут пешком.

Площадь помещения - 197 кв. м.

2-й этаж здания.
Есть грузовой лифт 2 т (2,0х2,2х2,5).
Двое ворот (4*4 м; 2*3 м).
Высота потолка 3,64-4,5 м, бетонный пол.

Оснащение: выделенная электроэнергия, освещение, отопление, пожарная сигнализация.

На территории действует круглосуточная охрана.
+7 (812) 493-52-74
Перезвоните мне
Хотите посмотреть? Покажем вам это помещение и несколько похожих
Запишитесь на просмотр
Вас также может заинтересовать
45.2 м2
38 374.8 руб
75.8 м2
60 564.2 руб
190.6 м2
85 579.4 руб
442.7 м2
277 130.2 руб
768.8 м2
668 087.2 руб
2611.6 м2
2 637 716 руб
4089.6 м2
4 784 832 руб
5803.2 м2
6 615 648 руб