Назовите оператору контакт центра при звонке ваш промокод:    

Безопасная аренда

Подробнее

Онлайн просмотры и договор с цифровой подписью

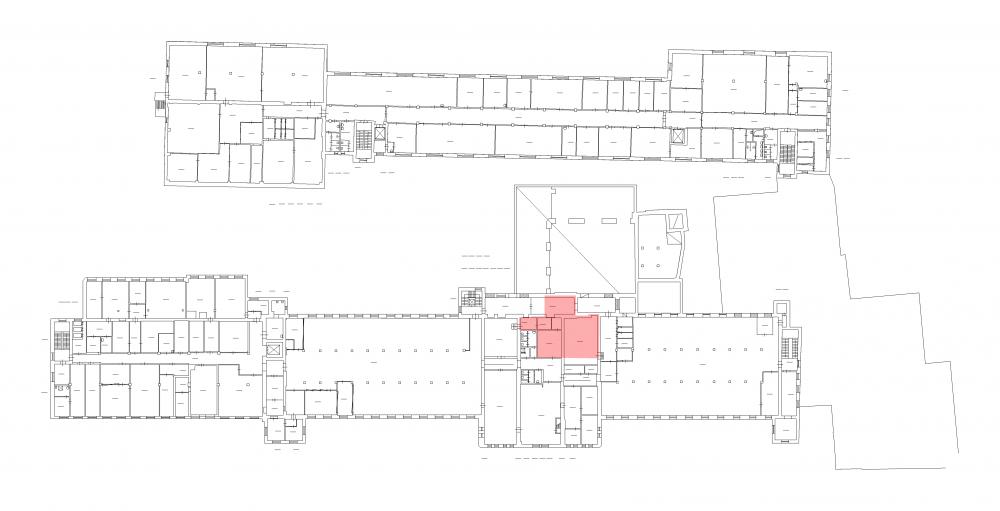
Помещение
Этаж 3
Площадь 128.1 м2
Ставка 369 руб./м2
Характеристики
Безопасность
Охрана Круглосуточная
Коммуникации
Телефон есть
Интернет оптоволокно
В арендную плату входит
  • Профессиональное управление
  • НДС
Оплачивается отдельно
  • Клининг
План помещения
Описание
Аренда производственных помещений площадью 128,1 кв. м у метро "Нарвская".
Адрес: ул. Промышленная, д. 5, 3 этаж.

На предлагаемой площади можно разместить небольшое предприятие по металлообработке.
Высота потолка 3,53 м достаточна для установки оборудования.
Наличие грузового лифта на 2 тонны (2,4 х 1,9 х 2,2 м) обеспечивает лёгкую транспортировку до помещения или погрузочно-разгрузочных зон.

В помещение проведены необходимые коммуникации: выделенная электроэнергия, освещение, отопление, пожарная сигнализация.
Подключение высокоскоростного интернета и телефонии доступно для арендаторов.

Охрана территории 24 часа, видеонаблюдение.
Доступ осуществляется по магнитным пропускам.

До здания удобно добираться как на общественном транспорте, так и на личном автомобиле.
Станция метро “Нарвская” находится всего в 5 минутах ходьбы.
В непосредственной близости пролегают проспект Стачек, Старо-Петергофский проспект , а также набережная Обводного канала.

Рядом располагаются торговые центры "Галерея 1814", "Нарвский" и "Кировский универмаг".
+7 (812) 493-52-74
Перезвоните мне
Хотите посмотреть? Покажем вам это помещение и несколько похожих
Запишитесь на просмотр
Вас также может заинтересовать
45.2 м2
38 374.8 руб
75.8 м2
60 564.2 руб
190.6 м2
85 579.4 руб
442.7 м2
277 130.2 руб
768.8 м2
668 087.2 руб
2611.6 м2
2 637 716 руб
4089.6 м2
4 784 832 руб
5803.2 м2
6 615 648 руб