Назовите оператору контакт центра при звонке ваш промокод:    

Безопасная аренда

Подробнее

Онлайн просмотры и договор с цифровой подписью

Помещение
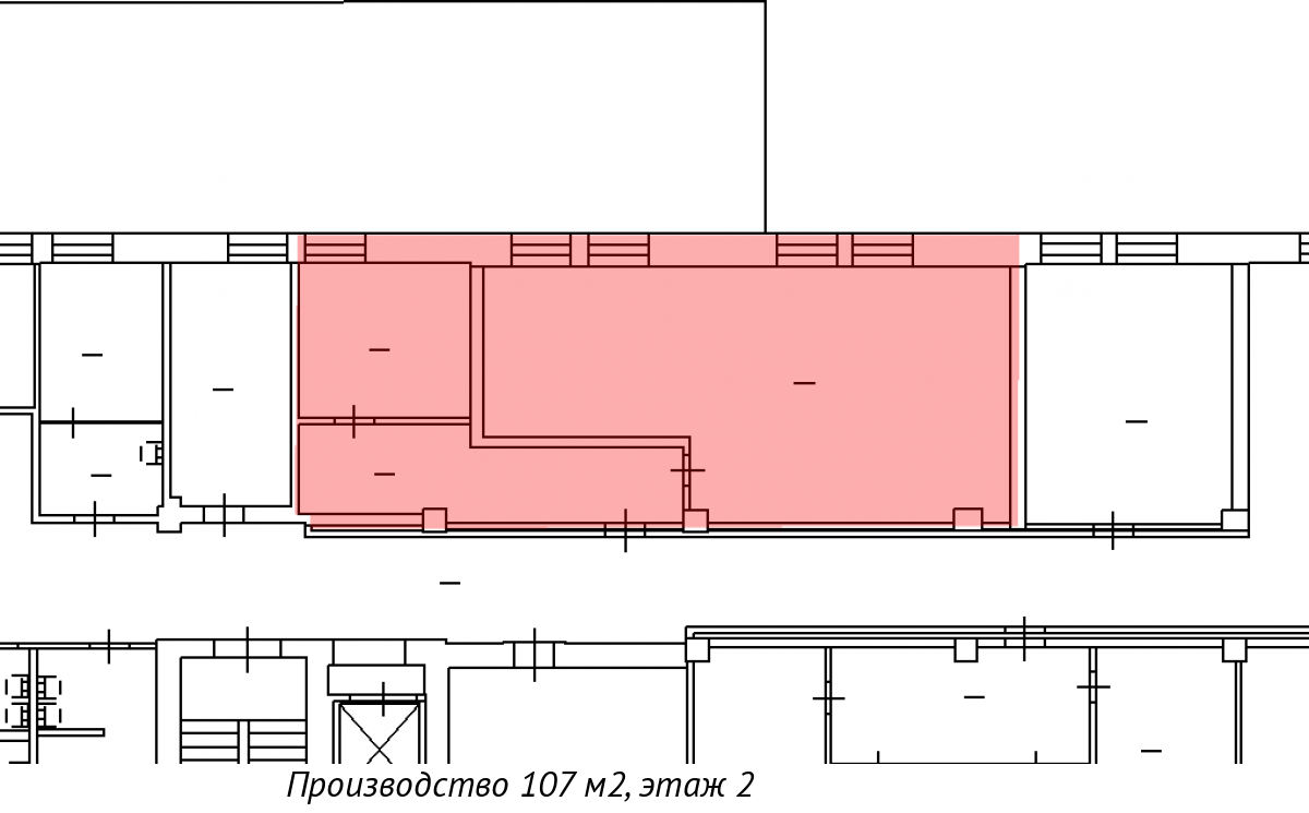
Этаж 2
Площадь 107 м2
Ставка 899 руб./м2
Характеристики
Безопасность
Охрана Круглосуточная
Коммуникации
Телефон есть
Интернет оптоволокно
В арендную плату входит
  • Профессиональное управление
  • НДС
Оплачивается отдельно
  • Клининг
План помещения
Описание
Производственное помещение в аренду от собственника.
Расположено в Кировском районе города.

Адрес: улица Промышленная, дом 5.
2-й этаж здания.

Хорошее состояние.
Отопление, освещение, электроснабжение- всё что нужно для современного производства.
Возможно подключение интернета за дополнительную оплату.

Охрана 24/7.
Пропускная система.

Станция метро "Нарвская" расположена в шаговой доступности.
+7 (812) 493-52-74
Перезвоните мне
Хотите посмотреть? Покажем вам это помещение и несколько похожих
Запишитесь на просмотр
Вас также может заинтересовать
45.2 м2
38 374.8 руб
75.8 м2
60 564.2 руб
190.6 м2
85 579.4 руб
442.7 м2
277 130.2 руб
768.8 м2
668 087.2 руб
2611.6 м2
2 637 716 руб
4089.6 м2
4 784 832 руб
5803.2 м2
6 615 648 руб