Назовите оператору контакт центра при звонке ваш промокод:    

Безопасная аренда

Подробнее

Онлайн просмотры и договор с цифровой подписью

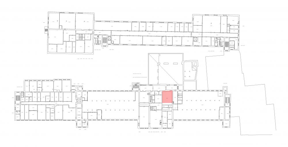
Помещение
Этаж 3
Площадь 56.9 м2
Ставка 610 руб./м2
Характеристики
Безопасность
Охрана Круглосуточная
Коммуникации
Телефон есть
Интернет оптоволокно
В арендную плату входит
  • Профессиональное управление
  • НДС
Оплачивается отдельно
  • Клининг
План помещения
Описание
Производственное помещение площадью 56.9 кв. м сдаётся в аренду в Кировском районе города.

Третий этаж здания на Промышленной ул., д.5.
Есть грузовой лифт г/п 2 т.
Ближайшая станция метро -  "Нарвская".

Действует система СКУД.
Проход осуществляется по электронным картам доступа.

Дополнительные услуги: высокоскоростной интернет и цифровая телефония.
+7 (812) 493-52-74
Перезвоните мне
Хотите посмотреть? Покажем вам это помещение и несколько похожих
Запишитесь на просмотр
Вас также может заинтересовать
45.2 м2
38 374.8 руб
75.8 м2
60 564.2 руб
190.6 м2
85 579.4 руб
442.7 м2
277 130.2 руб
768.8 м2
668 087.2 руб
2611.6 м2
2 637 716 руб
4089.6 м2
4 784 832 руб
5803.2 м2
6 615 648 руб