Назовите оператору контакт центра при звонке ваш промокод:    

Безопасная аренда

Подробнее

Онлайн просмотры и договор с цифровой подписью

Помещение
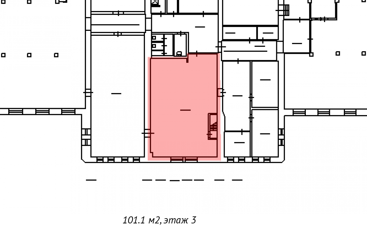
Этаж 3
Площадь 101.1 м2
Ставка 669 руб./м2
Характеристики
Безопасность
Охрана Круглосуточная
Коммуникации
Телефон есть
Интернет оптоволокно
В арендную плату входит
  • Профессиональное управление
  • НДС
Оплачивается отдельно
  • Клининг
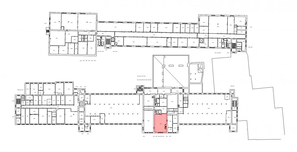
План помещения
Описание
Аренда производственного помещения в Кировском районе.

Адрес объекта: ул. Промышленная,  дом 5, этаж 3.
Ближайшая станция метро "Нарвская " в 5 минутах ходьбы.

Общий метраж: 101,1 кв. м.
Высота потолка: 3,6 м.
С/у рядом на этаже.
Есть грузовой лифт 2,4*1,9*2,1м, г/п 3 т.

В помещение заведены высокоскоростной интернет и цифровая телефония.
Установлены датчики пожарной безопасности.
Проход/проезд по магнитным пропускам.

Объект находится под круглосуточной охраной.
+7 (812) 493-52-74
Перезвоните мне
Хотите посмотреть? Покажем вам это помещение и несколько похожих
Запишитесь на просмотр
Вас также может заинтересовать
45.2 м2
38 374.8 руб
75.8 м2
60 564.2 руб
190.6 м2
85 579.4 руб
442.7 м2
277 130.2 руб
768.8 м2
668 087.2 руб
2611.6 м2
2 637 716 руб
4089.6 м2
4 784 832 руб
5803.2 м2
6 615 648 руб