Назовите оператору контакт центра при звонке ваш промокод:    

Безопасная аренда

Подробнее

Онлайн просмотры и договор с цифровой подписью

Помещение
Этаж 3
Площадь 70.1 м2
Ставка 675 руб./м2
Характеристики
Безопасность
Охрана Круглосуточная
Коммуникации
Телефон есть
Интернет оптоволокно
В арендную плату входит
  • Профессиональное управление
  • НДС
Оплачивается отдельно
  • Клининг
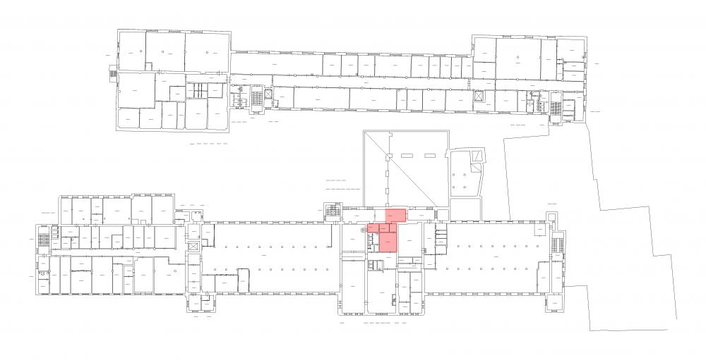
План помещения
Описание
Предлагается в аренду ЦЕХ ДЛЯ РАЗЛИВА МАСЕЛ на территории технопарка "Промышленная 5".

Помещение ПЛОЩАДЬЮ 70.1 кв. м расположено на 3-м этаже здания. Есть грузовой лифт г/п 2т (2,4х1,9х2,2м) на этаже.
Высота потолка - 3.53 м, стены окрашены, кафель.

ОСНАЩЕНИЕ: отопление, выделенная электрическая мощность, освещение.
УСЛУГИ: клининг, интернет, телефония, юр адрес.

Ближайшая станция МЕТРО "Нарвская" - в пяти минутах.
РАСПОЛОЖЕНИЕ: Промышленная ул., д. 5.
+7 (812) 493-52-74
Перезвоните мне
Хотите посмотреть? Покажем вам это помещение и несколько похожих
Запишитесь на просмотр
Вас также может заинтересовать
45.2 м2
38 374.8 руб
75.8 м2
60 564.2 руб
190.6 м2
85 579.4 руб
442.7 м2
277 130.2 руб
768.8 м2
668 087.2 руб
2611.6 м2
2 637 716 руб
4089.6 м2
4 784 832 руб
5803.2 м2
6 615 648 руб