Назовите оператору контакт центра при звонке ваш промокод:    

Безопасная аренда

Подробнее

Онлайн просмотры и договор с цифровой подписью

Помещение
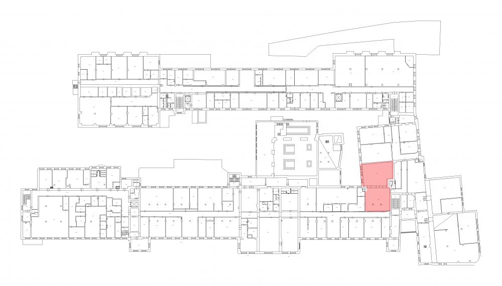
Этаж 2
Площадь 197.4 м2
Ставка 663 руб./м2
Характеристики
Безопасность
Охрана Круглосуточная
Коммуникации
Телефон есть
Интернет оптоволокно
В арендную плату входит
  • Профессиональное управление
  • НДС
Оплачивается отдельно
  • Клининг
План помещения
Описание
В Кировском районе города в аренду сдаётся помещение под мастерскую.

Помещение площадью 197.4 кв. м на 2-м этаже здания на Промышленной ул., д.5.
На этаже работает грузовой лифт 2 т (2 х 2,2 х 2,5 м).

Оснащение: отопление, освещение, выделенная электрическая мощность.
Двое ворот (4 х 4 м; 2 х 3 м).
В помещениях установлена пожарная сигнализация, проведены интернет и цифровая телефония.

Ведётся круглосуточная охрана, есть парковка на территории.

Ближайшая станция метро "Нарвская" находится в 5 минутах.
+7 (812) 493-52-74
Перезвоните мне
Хотите посмотреть? Покажем вам это помещение и несколько похожих
Запишитесь на просмотр
Вас также может заинтересовать
45.2 м2
38 374.8 руб
75.8 м2
60 564.2 руб
190.6 м2
85 579.4 руб
442.7 м2
277 130.2 руб
768.8 м2
668 087.2 руб
2611.6 м2
2 637 716 руб
4089.6 м2
4 784 832 руб
5803.2 м2
6 615 648 руб